LOOKING TO MOVE-IN FAST TO YOUR NEW DREAM HOME?
Click to check out our beautiful, quick move-in homes!
CLOSE
2,332 SQ. FT.
Priced from $462,990
Single Family | Celebration Series Homes SERIES
OVERVIEW
FLOORPLAN
COMMUNITY
VIDEOS
CONTACT US

OVERVIEW

Beds
4 Beds
Baths        
3 Baths
Garage
2 Car Garage
Square Footage
2,332 Sq Ft
Stories
1 Story

Have questions?

We're here to answer any questions about this plan or to help you schedule a tour of our model homes and community!
Just fill out the form below or call us at 888-720-4429
Neal Communities values your privacy and will not sell or share your information.

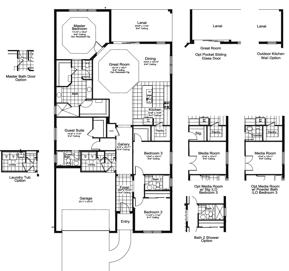
Triumph FLOOR PLAN & FEATURES

*Base price does not include the homesite premium or design options.*

A foyer and gallery entry gives Triumph a sophisticated feel from the moment you enter. The beautifully-designed kitchen features an island and a walk-in pantry for bringing five-star cuisine to life. Just off the charming great room, which includes an optional octagonal recessed ceiling, sliding glass doors take you to the covered lanai for outdoor relaxation.

The master suite is a rejuvenating spot for every homeowner, featuring two walk-in closets and a dual-sink bath with walk-in shower and private water closet. Opt for a media room in lieu of one of the two secondary bedrooms. Another bedroom is a guest suite with ensuite bath.

 

Features

  • Living Room
  • Dining Room
  • Family Room
  • Guest Room
  • Breakfast Area
  • Walk In Closets

PLAN YOUR VISIT TODAY

Boca Royale Golf & Country Club at Wellen Park

Country Club Living at Wellen Park Near the Beaches of South Sarasota County!

Coming soon, our beautiful amenity center and clubhouse, that will be the heart of the community, where neighbors become friends and every gathering is a celebration. Here, every day will be an adventure waiting to happen. You’ll soon be able to utilize our beautiful fitness center and unwind at the resort-style pool at the all-new amenity center.

Welcome to a life of pure joy and connection. Welcome to Boca Royale Golf & Country Club at Wellen Park.

Boca Royale Golf & Country Club at Wellen Park AMENITIES

Golf Course
Golf Course
Tennis
Tennis
Community Pool
Community Pool
Golf Simulator
Golf Simulator
Pickleball
Pickleball
Clubhouse
Clubhouse
Onsite Restaurants
Onsite Restaurants
Movie Lawn
Movie Lawn
Trivia Night
Trivia Night
Bingo
Bingo
Galas and Parties
Galas and Parties
School
Sarasota Co SD
School
College Preparatory Academy at Wellen Pa
School
Taylor Ranch Elementary (Grades K-5)
School
Island Village Montessori School (Grades
School
Venice Middle School (Grades 6-8)
School
Venice High School (Grades 9-12)
School
Wellen Park High School (Grades 9-12)
TV
New Boca Royale at Wellen Park by Neal Communies
Brochure
Community Brochure
Map
Community Map
Floorplan
AMENITIES VIRTUAL TOUR

VISIT Boca Royale Golf & Country Club at Wellen Park

From I-75: Take Exit 193 Jacaranda Boulevard. Head southwest until it ends at Route 776. Turn left onto 776 and go approximately 4 miles south. Turn left at the third entrance to the community at the four-way traffic intersection. Then a left before the gatehouse. Parking is available directly at the Sales Center.

10628 Sarazen Way - Englewood, FL 34223

DRIVING DIRECTIONS

PLAN YOUR VISIT TODAY

Are you ready to view our model and quick move-in homes? Don't wait, our New Home Sales Associates are here to guide you and show you the home of your dreams. Just fill out the form below or call us at 888-720-4429
  • MM slash DD slash YYYY
Neal Communities values your privacy and will not sell or share your information.